HF01 Felső végtag erősítő eszköz
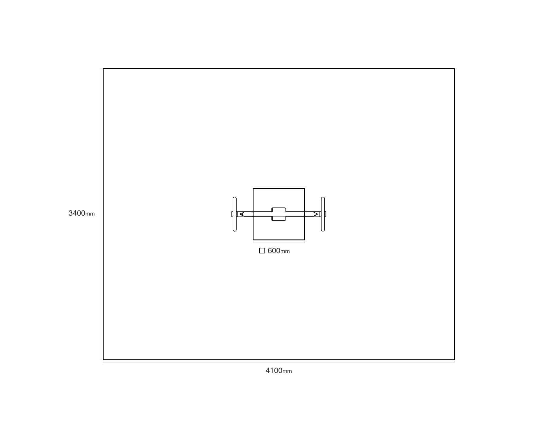
HF01 kültéri fitneszgép mozgássérültek részére - a felső végtagok izmainak és ízületeinek edzésére szolgál a vállaktól a könyökön át a csuklóig. A gép elhelyezéséhez szükséges minimális területnek 4100 x 3400 mm-nek kell lennie.
Hogyan használja - Fogja meg erősen a forgókereket, és fordítsa el, mintha egy autó kormánykerekét tekerné. Mozgassa felváltva az óramutató járásával megegyező és ellentétes irányban. Csak olyan pozícióba forgassa el a kezeit, ami még kényelmes Önnek.
Figyelmeztetés - A gyakorlat közben tartsa a tolószéket megfelelően lefékezve. Az edzés során a gyakorlatot végző személynek tökéletesen ismernie kell a berendezésre vonatkozó kezelési szabályokat, és be kell tartania azokat. Az edzőkészüléket használó személynek tisztában kell lennie saját egészségi állapotával és fizikai képességeivel. Ne becsülje túl a fizikai erejét edzés közben!
Természetesen igen, de a szállítás külön költségekkel jár! Amennyiben viszont bármely termékünket telepítéssel együtt rendeli meg, a szállítás egész Magyarországon ingyenes!
Mivel termékeinket (félkész) összeszerelt állapotban szállítjuk, akár saját kezűleg is el tudja végezni azoknak telepítését. Ebben az esetben kitűzési és alapozási tervet küldünk az adott termék mellé. Nagyobb, vagy bonyolultabb játékeszközök esetében érdemes viszont szakembereink közbenjárását igénybe venni! Amennyiben a telepítést nem saját szakembereink végezték, így az ebből eredendő reklamációt nem tudjuk elismerni!
Igen, a kínálatunkban szereplő összes termékünk a vonatkozó szabványoknak megfelelően műszaki ellenőrzésen esnek át! Termékeink tanúsítványait a szlovák "Műszaki Vizsgáló a.s." állami szervezet adta ki Pozsonyban. Részletes információ
Termékeinket Trencsénben, a több éves tapasztalattal rendelkező szlovákiai székhelyű Veríme v Zábavu s.r.o. anyavállalat csarnokában tervezzük, fejlesztjük, teszteljük és gyártjuk.
Bármilyen kérdés esetén állunk az Ön rendelkezésére! Kapcsolatba tud lépni velünk weboldalunk alsó részében található űrlap kitöltésével, vagy regionális értékesítőnket felkeresve. Ehhez kérjük látogasson el a következő oldalunkra. Regionális értékesítőink
Az általános gyártási határidő 6-8 hétre tehető. Viszont vannak olyan nagy és kombinált termékeink, amelyek gyártási folyamata meghaladja akár a 10-12 hetet is. Ennek értelmében az általános termékeinket maximálisan 10-12 hétre tudjuk telepítéssel és üzembehelyezési jegyzőkönyvvel Önnek birtokba adni.
































.png&w=200&h=200)















