VVZ-M1-03 Egyrészes ívelt kötélhíd lépegetővel
A lépegető lapokkal ellátott egyrészes ívelt kötélhíd szerkezete acélból, lépegetőlapjai csúszásmentes HPL jelölésű magas nyomású laminált kompaktlemezből és kötélrendszere pedig acélmagos poliészter kötélből készül. A magas nyomású HPL lemez törhetetlen, nem mérgező, újrahasznosítható, továbbá vegyszer- és UV-álló, így nem áll fenn annak a veszélye, hogy a gyermekek megsérülnek a játszás közben.készül. Az acél szerkezet horgany és KOMAXIT égetett porfesték felületkezelést kap. A poliészter szálakból készült acélmagos kötél magas szilárdsággal bír és ez által jobban ellenáll a mechanikai igénybevételnek. Maga a poliészter számos pozitív tulajdonsággal rendelkezik. Színtartó, ellenáll a mikroorganizmusoknak, az időjárási hatásoknak, (pl. eső után gyorsan szárad). Ezeknek az anyagoknak köszönhetően az eszköz minimális karbantartást igényel! A játékeszközt úgy terveztük, hogy a hosszú élettartam mellett a maximális biztonságot is garantálja! A kötélhíd ideális játékeszköz a kisebb gyermekek szórakoztatására! A kötélhídon a gyermekek a stabilitást és a koordinációt gyakorolhatják.
MŰSZAKI ADATOK:
- Cikkszám: VVZ-M1-03
- Max. használók száma: ... fő
- Ajánlott életkor: 3-14 év
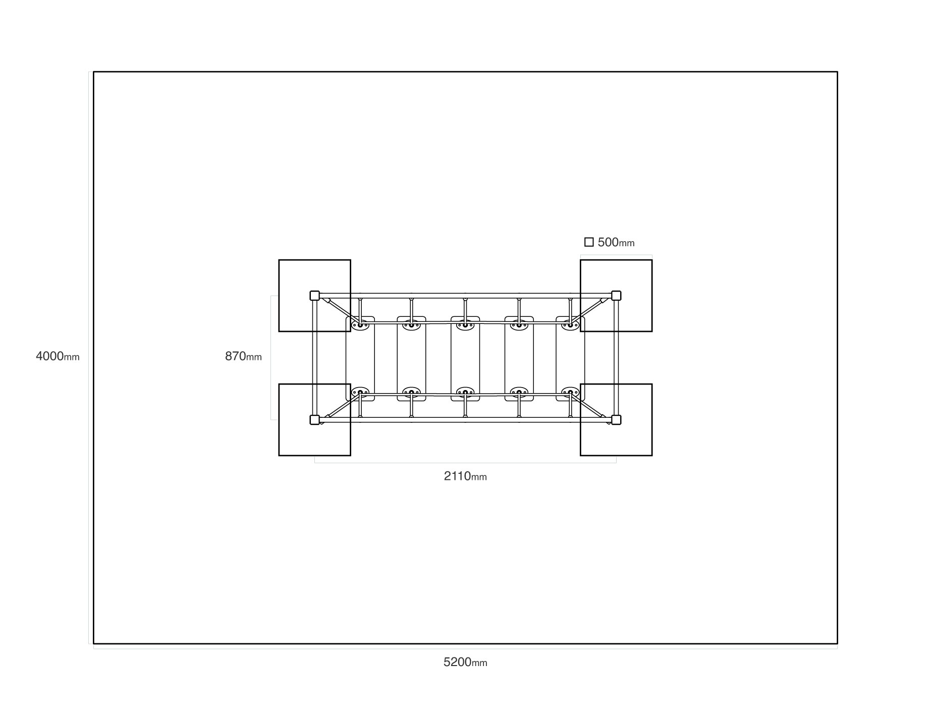
- Az eszköz méretei: 2,2 × 0,9 × 1,3 m (HxSzxM)
- Szabadesés magasság (HIC): 0,5 m
- Biztonsági zóna: 5,2 × 4,0 m
- Ütéscsillapító felület: gyep elegendő
- Használt anyagok: acél szerkezet horgany és KOMAXIT égetett porfesték felületkezeléssel, acélmagos poliészter kötél, csúszásmentes HPL magas nyomású laminált kompaktlemez, rozsdamentes acél kötőelemek

Kompakt HPL lemez

Egyensúlyedzés

Természetesen igen, de a szállítás külön költségekkel jár! Amennyiben viszont bármely termékünket telepítéssel együtt rendeli meg, a szállítás egész Magyarországon ingyenes!
Mivel termékeinket (félkész) összeszerelt állapotban szállítjuk, akár saját kezűleg is el tudja végezni azoknak telepítését. Ebben az esetben kitűzési és alapozási tervet küldünk az adott termék mellé. Nagyobb, vagy bonyolultabb játékeszközök esetében érdemes viszont szakembereink közbenjárását igénybe venni! Amennyiben a telepítést nem saját szakembereink végezték, így az ebből eredendő reklamációt nem tudjuk elismerni!
Igen, a kínálatunkban szereplő összes termékünk a vonatkozó szabványoknak megfelelően műszaki ellenőrzésen esnek át! Termékeink tanúsítványait a szlovák "Műszaki Vizsgáló a.s." állami szervezet adta ki Pozsonyban. Részletes információ
Termékeinket Trencsénben, a több éves tapasztalattal rendelkező szlovákiai székhelyű Veríme v Zábavu s.r.o. anyavállalat csarnokában tervezzük, fejlesztjük, teszteljük és gyártjuk.
Bármilyen kérdés esetén állunk az Ön rendelkezésére! Kapcsolatba tud lépni velünk weboldalunk alsó részében található űrlap kitöltésével, vagy regionális értékesítőnket felkeresve. Ehhez kérjük látogasson el a következő oldalunkra. Regionális értékesítőink
Az általános gyártási határidő 6-8 hétre tehető. Viszont vannak olyan nagy és kombinált termékeink, amelyek gyártási folyamata meghaladja akár a 10-12 hetet is. Ennek értelmében az általános termékeinket maximálisan 10-12 hétre tudjuk telepítéssel és üzembehelyezési jegyzőkönyvvel Önnek birtokba adni.
































.png&w=200&h=200)















